Understanding Floor Plan Symbols: A Guide for Construction Professionals
Reading floor plans can feel overwhelming, especially for people new to the industry. Depending on the project, there can be several pages, all with different information and symbols.
As a note, floor plans and blueprints are not the same. While floor plans are included in the blueprint package, they represent just one part of the project. Blueprints contain all of the building's schematic information and communicate separate tasks for the general contractors and subcontractors.
To help make understanding floor plans easier to understand for homeowners, architects and designers have created symbols and iconography to help communicate information more easily. Floor plans and symbols also give a visual of how the finished project will look.
In this guide, we'll explain what floor plans are, the several types of floor plan symbols, important abbreviations, and why understanding these symbols is crucial for many contractors.
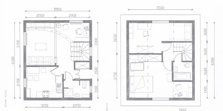
What is a Floor Plan?
Floor plans are mockups and schematics that provide a visual of the architectural design. Essentially, they are the final product of how a room, home, or office will look. Within these mockups, designers and clients can experiment with several designs until they find the right one. Floor plans exist as concepts of the bigger project, but are useful for contractors to understand as some symbols depict the type of structure being built.
Common Floor Plan Symbols
There are several types of floor plan symbols. Each type represents the location of structural elements like walls, doors, windows, stairs, appliances, and more. Within the design mock-ups, these are depicted by symbols to communicate effectively to contractors and the client, without having to get into specifics.
It's important to note that some design firms and general contractors will use different symbols than the ones below. However, most of them are standardized or common enough to be used across a broad range of floor plans.
Wall Symbols
Indicated by parallel lines, walls are one of the most recognizable symbols on a floor plan. Typically, thicker lines represent exterior walls, and thinner lines are interior walls. The designs indicate the material from which the walls are made. Common materials include steel, wood, plywood, concrete, and brick.
Door Symbols
Door symbols communicate where a door will go in a finished structure and how it will open. There are three ways a door can open; inward, outward, and sliding. Installing doors the right way is vital as it helps with interior design and flow. Door designs often look like breaks in either the interior or exterior walls. Sliding doors usually exist in the gap between doors and doors that swing open are shown through various angles. These symbols communicate to subcontractors what doors will be installed and inform them how they should build the doorway.
Window Symbols
Like door symbols, window symbols are identified by the way they open and their design. For example, the windows that swing have arcs or angles to indicate how they should open. Windows that extend outward from the home are called bay windows.
Stair Symbols
Stair symbols are pretty easy to understand. The floor plans indicate where they will go in the house, the design, and their shape. The arrows on the symbol indicate the direction the stairs should climb.
Furniture Symbols
Floor plans may also include the ideal interior design of how each room is supposed to look. While some appliances and furniture are bound to move, some furniture is locked in place from the construction phase. This includes machines like dishwashers, fridges, and more which we will discuss in further detail below.
Floor Plans by Room
As mentioned above, there are also room-specific symbols that contractors should be aware of when working in construction. Furniture and appliance symbols are often square by design and have abbreviations depicting what type of appliance they are to save space on the designs.
For example, "D" could mean dryer, "DW" for dishwasher, and "CAB" for cabinet. Other appliances like bathtubs, sinks, and showers are often more stylized. They can be customized to look like the appliance you want to be installed. For example, a gas stove may look different than a non-gas stove, or a double sink has an icon that is distinct from a single sink.
Kitchen Floor Plan Symbols
Kitchen symbols include appliances like the stove and oven, fridge, dishwasher, cabinets, sink, and countertops. These are vital to the kitchen's layout as they cannot be moved unless you're going through a renovation.
Bathroom and Plumbing Floor Plan Symbols
Bathroom symbols include sinks, toilets, countertops, cabinets, and sometimes the washer and dryer, depending on your house. There are also different designs for types of toilets including urinals, water closets, and more for public buildings. These symbols are likely to change depending on the requests of the homeowner and contractor you work with.
Bedroom Floor Plan Symbols
In the actual bedroom, almost no furniture is fixed. While symbols placed in areas like the master bedroom bathroom will be specified, everything in the bedroom itself can be moved. However, the symbols help determine how much space you will have access to once the room is filled with furniture.
How to Read Floor Plan Symbols
Now that you know the common symbols, reading floor plans should be much easier. It's important to remember that while the furniture provides a guide for what the space can look like, knowing where appliances, water fixtures, lights, windows, and doors should be and how they should open is a decision that should be made early on in the project.
Used to guide the client and contractors through how the space should look, floor plans are scaled-down versions of the final product. As part of all the blueprint and construction documents, floor plans are a reference tool and map to help team members be more efficient in their jobs. Not only do they communicate the relationship between the space and materials used, but they also communicate how everything should be oriented when complete. Missing something in the floor plans can be costly which is why it's essential to review them frequently.
While the images and symbols above communicate the frequent icons that designers and architects use to make floor plans, every firm and construction company has its own style. Most floor plans and blueprints will come with legends that communicate each symbol and abbreviation for that project. It's always best to confirm and communicate with the designers of your project if you have any questions.

